装修材质搭配
2016/08/11来源:伟德国际公司作者:伟德国际公司
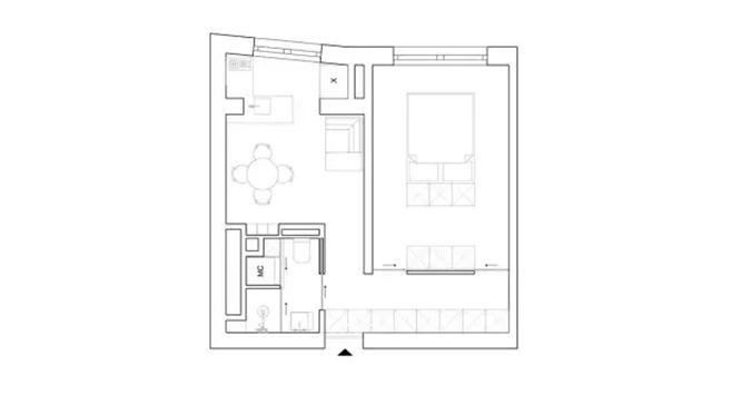
用六种材质搭配 - 木材、水泥、大理石、瓷砖和两种复合材质,每个房间都是不同的组合。为了节省空间,所有的房间都使用推拉门。餐桌上和卧室的白色灯具在房间中十分亮眼。









转载声明:本文内容及图片版权伟德betvlctor旧版传媒为杂志所有,未经正式书面授权不得以任何形式转载或使用
欢迎来到伟德betvlctor旧版平台网站
2016/08/11来源:伟德国际公司作者:伟德国际公司
用六种材质搭配 - 木材、水泥、大理石、瓷砖和两种复合材质,每个房间都是不同的组合。为了节省空间,所有的房间都使用推拉门。餐桌上和卧室的白色灯具在房间中十分亮眼。









转载声明:本文内容及图片版权伟德betvlctor旧版传媒为杂志所有,未经正式书面授权不得以任何形式转载或使用