小户型的大问题
2017/05/09来源:伟德国际公司作者:伟德国际公司
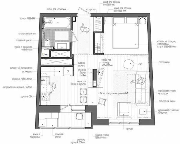
房子的形状是一个角度不大的梯形,所以为了不让每一个房间过分的不规则,尽量减少隔断。除了阳台与卫生间,其他的房间都选择开放。鲜活的颜色与白色搭配,适合年轻人的审美。巧妙的储物设计,轻便的家具,让活动的范围更显宽敞,也多了一些舒适。
转载声明:本文内容及图片版权伟德betvlctor旧版传媒为杂志所有,未经正式书面授权不得以任何形式转载或使用






















粤公网安备 44030302001606号